
本公司載貨電(diàn)梯利用微機控製技術,采用高強度的型材設計製造的橋廂,可在各種惡劣環境下進行貨物運輸的工作。公司載貨(huò)電(diàn)梯執行GB7588《電梯製造與安裝安(ān)全規範》現行國家標準。安(ān)全可靠、結構強度高、經久耐用、運行平穩、開門距大、性價比高等優點,使本公司貨梯成為工廠、倉儲、百貨商城、物業中心等單位運輸貨(huò)物的理想選擇。
多種開門方式
為了滿足用戶(hù)的不同進出要求(qiú),本公司載貨電梯(tī)有中分門、中分雙折門、旁(páng)開門、貫通門以及三開門五種開門(mén)方(fāng)式供選(xuǎn)擇,與工廠、倉儲(chǔ)、百貨商場、物業(yè)中心等建築物結構靈活匹(pǐ)配。

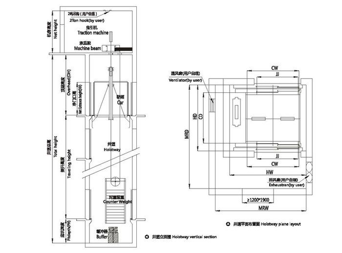
載貨電梯土建示意圖


載貨電梯
載貨電梯 2019-4-15 本文被閱讀 5196 次
| 上一條(tiáo):載貨電梯 | 下一條:中瑋星悅城蘭庭(tíng) |

















