91香蕉视频黄色(diàn)(山東)電梯有限公司官網,歡迎來電谘詢(xún):400-0537-868
91香蕉视频黄色(山東)電梯有限公司(sī)

91香蕉视频黄色(山東)電梯有限公司(sī)

KYLERYODEN(SHANDONG)ELEVATOR CO.,LTD.
服務熱線
網站首頁 公司(sī)簡介 產品展示 工程案例 新聞中心 企業風采 資質榮譽 聯係我們
您現在的位置:網站首頁>汽車電梯

91香蕉视频黄色汽車電梯

乘客電梯

無機房(fáng)電梯

小機房電梯

觀光電梯

醫用(yòng)電梯

別墅(shù)電(diàn)梯

載貨電梯

無機房載貨電梯

汽車電梯

雜物電梯

自動人行道(dào)

自動扶梯

垂直往複(fù)式滾筒提升(shēng)機

立體車庫

汽車電梯(tī)

微信二維碼
微信二維碼
本(běn)文(wén)詳細(xì)介紹汽車(chē)電梯的相關產品詳情,並以高清素材(cái)匹配本欄目,給予(yǔ)瀏(liú)覽者(zhě)更為(wéi)寬泛的閱讀體驗

91香蕉视频黄色(山東)電梯有限公司

銷售熱線:400-0537-868 / 0537-7120666
供應電話:0537-7912777
辦公電話:0537-7193999
手機:15953726888 / 13696370699
傳真:0537-7857666
郵(yóu)箱:sdddt@163.com
網址:www.dlami.net
地址:山(shān)東省濟寧市汶上縣二環南路

信息詳情

汽(qì)車電梯(tī)

       汽車電梯采用成熟的變壓變頻控製技術精 確調速控製,避免了(le)因(yīn)轎廂受力不均而導致的曳引係統負載加重而產生噪音及轎廂抖動,較大程度優化了這一係列產品的特性。

安全導向裝置

       轎內地麵設有安全導向裝置,保證(zhèng)了電梯及汽車(chē)的安全。

雙麗貫(guàn)通開門

       電梯(tī)轎廂雙麵貫通開門,更方便了汽車進出轎廂和安全(quán)。

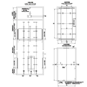
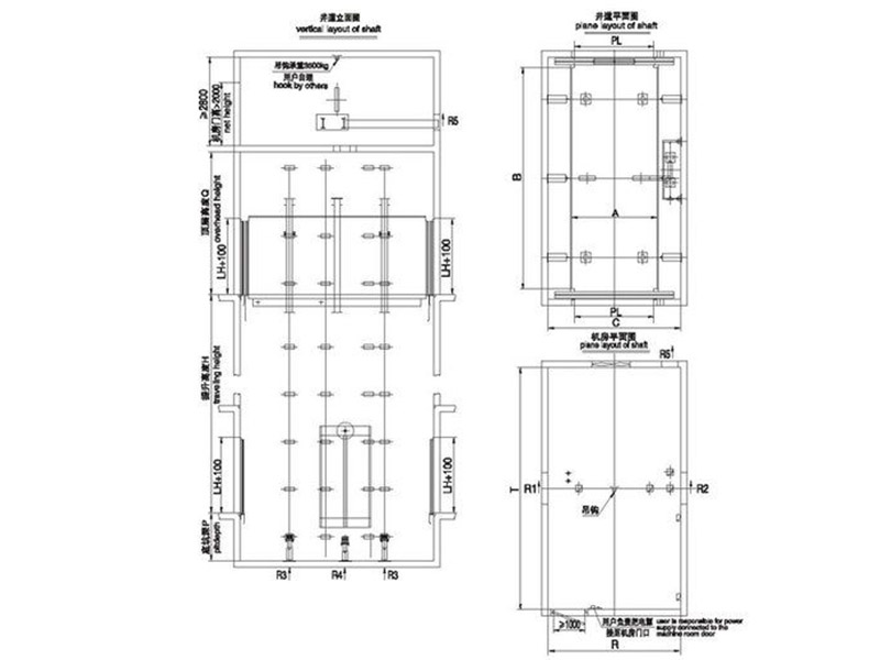
汽車電梯土建示意(yì)圖

汽車(chē)電梯

汽車電梯


汽車電梯
汽車電梯(tī) 2019-4-15 本文被閱讀 4939 次
上一條:雜物電梯下一條:中瑋星悅城蘭庭

同類產品

91香蕉视频黄色(山東)電梯有限公司 - 聯係方式
91香蕉视频黄色(山東)電梯有限公司
銷售熱線:400-0537-868 / 0537-7120666
供應電話(huà):0537-7912777   辦公電話:0537-7193999
手機:15953726888 / 13696370699    傳真(zhēn):0537-7857666
郵箱:sdddt@163.com
網址(zhǐ):www.dlami.net    地址:山東省濟寧市汶上縣二環南路
企業信息公示
二維碼

版權所有(yǒu):凱爾(ěr)菱電(山東)電梯有限公司(sī)    魯ICP備16021130號-1      16075018517509092.png魯公網安備 37083002370884號